집 인테리어가 완료되어 글로 남겨 봅니다. ^^
참고로, 사진 찍는 기술이 미흡해서 실제 모습보다 좀 허접? 하게 나왔네요. ㅋㅋ
실제로 보면 더 이쁩니다! ㅋㅋㅋㅋ
우선 저희 집은 25평형 15년된 복도형 아파트 이며, 이번에 인스디자인 이승제 실장님께 공사를 맡기게 되었습니다.
저희는 저랑 와이프, 4살 딸 포함해서 3식구이고요.
가족 구성이 이렇게 때문에 기존 식탁 대신 아일랜드 식탁으로 작업하고, 복도형이기 때문에 중문을 달고, 거실이 좁기 때문에 확장을 하자!! 그리고 올 화이트로 가면서 포인트 색상만 약간씩 주자!! 라는 컨셉으로 인테리어를 알아보게 되었습니다. ^^
진짜 3달 동안 여기저기 많은 견적을 받아 보고 검색도 엄청 했습니다.
결론부터 말씀드리자면 인스디자인 이였습니다.
아마, 대략 한 15군데 정도 알아봤을 겁니다. 엄청 많이도 알아봤네요.. ^^;
제가 생각한 예산에 맞춰서 간단하게 하려고 했었거든요.
근데, 좀 더 검색을 하다보니.. 너무 예산만 상객하다가 괜히 인테리어 해 놓고 실망할 수도 있겠다.. 라는 생각이 들더라고요.
나중에 없어지는 업체도 비일비재하고요..
그래서 전, 아래 리스트를 생각하고 인테리어 업체를 선정하게 되었습니다.
1. A/S 가능한 곳인가? (금방 사라질 업체가 아닌가?)
2. 디자인 감각이 있는 곳인가? (인스디자인 카페에서 사진 엄청 봤습니다. ㅎㅎ)
3. 견적을 너무 높게 측정하지 않는가? (현장에서 실측하고 견적 받아봤는데, 이전에 받았던 견적하고 별 차이 없었습니다.)
4. 시공중간이나 시공 후에 추가금액을 요청하지 않는가? (인스는 고객과 협의되지 않은 부분에 대해선 추가금액이 없다고 들었습니다. 물론 공사 후, 실제로 추가금액이 발생한 부분은 없었고요.)
물론, 인스디자인보다 좋은 인테리어 업체는 많이 있습니다.
하지만, 제가 알아본 곳들은 견적이 어마어마 했습니다. ^^;
그래서 제가 생각한 예산대비 훌륭하게 인테리어를 마무리 해 줄 만한 곳이 인스디자인 이라고 생각되었기에 인스디자인을 선택하게 되었습니다. ^^
인스디자인 홍대 사무실에서 이승제 실장님하고 미팅한 게 엊그제 같은데, 벌써 인테리어가 끝나 버렸네요. ^^
그럼 본격적으로 저희 집 인테리어 스토리를 풀어보도록 하겠습니다!!
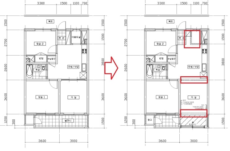
아래 평면도에 빨간색 표시는 구조변경을 한 부분으로 총 3군데 입니다.
저희 집 인테리어에서 가장 핵심적인 부분이죠!
1. 현관하고 다용도실(세탁실) 사이의 벽 철거
2. 주방하고 거실 사이의 분합문 철거
3. 거실하고 거실베란다 사이 철거(거실 확장)

혹시 모를 유혈사태(신고로 인한 구조변경 원상복귀)를 막기 위해, 동주민 2/3이상의 동의를 얻고, 동작구청에 공사 신고를 하고 공사를 진행 했습니다. 물론, 문제가 안 생기는 비내력벽 철거만 진행했고요.
1. 현관 & 다용도실(세탁실) Before
집 처음보러 갔을 때, 한숨 한번 쉬고 시작했던 기억이 나네요.. ^^;

현관 & 다용도실(세탁실) After
신발장 뒤의 비내력벽을 철거하고, 빌트인 장을 맞춰서 냉장고&김치냉장고를 넣었어요.
두꺼비집?은 스마일박스로 해결했으며, 좁은 신발장과 빌트인장 옆면의 심심함을 달래기 위해서..
신혼여행으로 다녀왔던 산토리니 그래픽 스티커를 작업했네요.. ^^;
잘한 점: 현관 중문 설치와 더불어 포인트로 파란색 색상을 준 것
아쉬운 점: 신발장 뒷문을 떼었다 붙였다 할 수 있는 방식으로 하지 못한 점
(붙박이장 뒤의 공간이 약간 있는데.. 갈 수 있는 방법이 없거든요.. ㅠㅠ)

2. 싱크대 Before

싱크대 After
싱크대는 11자로 할지, ㄷ자로 할지, ㄱ자로 할지 고민 진짜 많이 했는데요.
결론은 약간 짧은 ㄱ자로 결정했습니다. 싱크대를 너무 길게 빼면 ㄱ자로 나온 부분하고 약간 언발란스 할 거 같아서..
싱크대를 약간 짧게(2.4M) 뺐고요. 결과는 대 만족 입니다.
저희 집 싱크대의 특징은 양문형 냉장고를 없애고, 빌트인 냉장고를 사용했다는 점과..
기존 식탁을 없애고, 아일랜드 테이블 위의 대리석 상판 한쪽을 조금 길게 빼서, 식탁 대용으로 사용한다는 점 입니다.
빌트인 냉장고랑 세탁기 시공전에 찍은 사진 밖에 없어서. 냉장고 & 세탁기 없는 상태로 올리네요. ^^;
잘한 점: 양문형 냉장고를 과감히 없애버리고 빌트인 장을 만든 점 / 싱크대를 너무 길지 않게 시공한 점
아쉬운 점: 사진상으로는 잘 안보이지만, 기존 싱크장을 떼어낸 벽(타일과 벽지가 만나는 곳)이 매끄럽지가 못해서 벽지를 붙여 놓으니, 약간 울퉁불퉁 하네요. 얇은 합판 한장을 덧 붙이고, 벽지 마감을 할 걸.. 이라는 후회가 약간 됐습니다. ^^;

3. 거실 & 거실 수납공간 & 작은방 입구 Before

거실 & 거실 수납공간 & 작은방 입구 After
욕실문을 제외한 나머지 문&문틀은 전부 리폼 했으며, 인터폰 박스는 현관과 동일하게 스마일박스를 사용 했습니다.
기존 거실 분합문은 철거를 했으며, 공간이 넓어 보여서 아주 만족하고 있습니다.
역시 사진 찍는 기술이 허접해서.. 어둡게 나왔네요. ^^;
냉장고&세탁기는 설치전에 잠깐 작은방에 둔거고요.
문틀을 흰색으로 시공해서 잘 표시는 안됐지만, 천정까지 람마시공해서 정말 이쁘게 잘 나왔습니다.
잘한 점: 거실 한쪽 면에 포인트 색상을 준 것 / 거실 분합문을 철거한 점
아쉬운 점: 코너기둥을 슬림한 거로 시공해서, 거실분합문 철거로 인한 울툴불퉁한 부분이 약간 노출된 점
(안방쪽 벽면이라 사진상으로는 보이지 않네요. 이승제 실장님이 처음에 선택한 코너기둥으로 시공 했더라면 괜찮았을텐데... ㅠㅠ)

4. 화장실 Before
10년만에 화장실이 어떻게 이렇게 되지? 라고 생각했던 곳이네요.. ^^;

화장실 After
특이한 점은 샤워부스가 마닥에서 천장까지 마감되는 밀폐형 구조라는 점과 상부장 없애고, 하부장만 사용한다는 점 입니다.
그냥 무난하고 깔금하게 작업 했습니다.
잘한 점: 라디에이터 철거한 점
아쉬운 점: 벽 수전을 못한점 / 수전볼을 하부장과 똑같은 사이즈의 도기 사각형 스타일로 하지 못한점 / 양변기가 수전 하부장과 거의 붙어 있어서 비데를 설치할 수 없는 점

방 문 이라든가.. 양변기 뚜껑이라든가.. 이런것들을 닫고 찍어야 사진이 이쁘게 잘 나올텐데.. ^^;
공사하기 전에 사진을 많이 못 찍어 놔서, 위에 올린 사진이 다라서, 비교 사진은 여기까지고요.
공사 완료 사진 추가로 몇장 더 올려볼게요. ^^
안방 붙박이장
슬라이딩이랑 갤러리랑 고민하다가 이승제 실장님 추천대로 갤러리로 했는데요.
사진보다 실제 모습이 더 고급스럽고 이뻐서 만족하면서 사용하고 있습니다. ^^

거실확장
잘한 점: 확장을 한 점 (추위나 누수 문제 때문에 고민 많이 했는데, 해 놓고 보니 확실히 거실이 넓어서 좋았습니다.)
아쉬운 점: 사진상으로 보이는 것처럼, 왼쪽벽면 마감 일부가 튀어나온 점
(확장벽체 마감 & 에어컨 전기코드를 빼기 위해서 저런 방식으로 시공 했는데요. 차라리 벽을 까고 전기선을 연결하고 압축 스티로폼으로 마감할 걸.. 이라는 후회가 조금 남았습니다.)

베란다 중문
현관중문과 똑같은 색상 & 스타일 입니다.
잘 보이지 않지만, 망입유리를 삽입해서 중문이 너무 단조롭거나 심심하지 않아서 좋아요. ^^
베란다가 이중창이면, 베란다 중문은 이런 스타일 추천 드려 봅니다.

현관중문

이 외에, 각종 등이나 마감재, 포인트 벽지 등등 있는데요.
이런 것들은 다른 집들하고 비슷한 거 같아서, 사진으로 올리진 않았어요. ^^
마지막 총평!!
저희가 선택한 바닥재가 오크워시 라는 밝은 계통의 색인데요. 처남이 선택해 준 색상인데, 색감이 참 이뻐요. ^^
더 밝은 계통을 원하시는 분들은 오크워시보다 밝은 화이트워시도 있으니까. 참고하시고요. ^^
그리고, 스타일리쉬 비용이나 디자인 비용이 추가로 들어가지 않았기에.. 디자인이나 이런 부분에 대해선 따로 권장 받거나 그러진 않았습니다. 물론 인스디자인에서 기본적이고 깔끔한 디자인은 추천해 주셨지만요. ^^
다시 말해, 위의 중문 스타일이나 신발장 뒤의 비내력벽 허물고 빌트인장 만들고, 싱크대 상부장 없애는.. 이러한 작업들은 전적으로 저희 부부가 고민해서 만들어 낸 스타일 입니다.
인스디자인 이승제 실장님의 꼼꼼함과 깔끔한 디자인에 만족하고 감사드리지만, 이런 디자인적인 부분도 약간만 잡아주신다면 고객? 입장에서는 더 만족할 수 있을 거 같아서, 아쉬운 마음에 이렇게 글로 남겨 봅니다.
디자인 비용을 따로 추가하지 않고, 요런거 까지 바라면 너무 욕심인가요? ㅋㅋ
저희 집 소개는 여기까지고요~ ^^
끝까지 성심성의껏 공사 진행해 주신, 이승제 실장님 비롯하여 여러 시공자 분들께 정말 감사하다는 말씀 드리고 싶습니다.
P.S 서비스로 현관문 진한 그레이 색상으로 시트지 작업해 주셔서 정말 감사합니다.
이건 뭐.. 너무 너무 맘에 드네요. ^^